
TBM Main Bearings (Cutter Head Bearings)
Three-row cylindrical roller bearings for cutter head of tunnel boring machines
In tunnel boring machines (TBMs), the cutter head main bearing is an important component that plays a central role in the operation of these machines. The bearing supports and guides the rotation of the main shaft, enduring significant axial loads, radial forces, and overturning moments. This type of bearing is predominantly used in TBMs, pipe jacking machines, and other tunneling equipment.
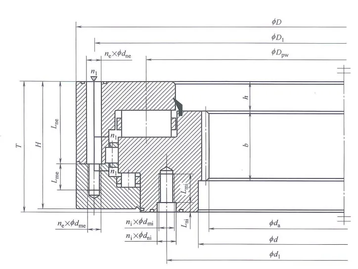
The cutter head main bearing features a three-row cylindrical roller structure and is available in three forms: internal gear, external gear, and gearless. These bearings are composed of rings (inner and outer rings), rollers, cages, and seals.
Request a Quote
Basic Information
- Material: Typically, 42CrMo4-L is used unless the customer specifies otherwise, with induction hardening applied to the raceways. Other steel grades are available based on customer requirements
- Manufacturing capacity: The largest bearing processed so far has an outer diameter of 8.010 meters, with a maximum gear module of m=30.
- Customization: Non-standard products can be customized to meet specific user requirements
- Repair services: In addition to designing and manufacturing main bearings for TBMs, we also provide inspection and repair services for these bearings
- Company strengths: We are one of the drafters of the industry standard JB/T14575-2023 for main bearings and has inspected and repaired over 100 main bearings in recent years
Study Cases





